- 装拆阀门时如何区分左旋螺纹和右旋螺纹呢
- 全球最大球阀生产基地本月将落户成都
- 最常用的氧气减压阀,氧气减压阀用途
- 自力式温控阀结构原理
- 自力式温度调节阀应用范围和特点
- 自力式调节阀作用、优点及分类
推荐阅览
公司电话:021-57522756移动热线:13671530603
传真号码:021-33275154
邮 箱:lqgyyz@163.com
地 址:上海市川南奉公路9860号
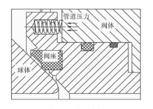
固定球阀上游密封自动泄压式阀座与双密封阀座的区别
在管线阀门中,通常采用两种型式的软密封阀座结构,一种是自泄式阀座,另一种是双活塞效应阀座。传统的固定式球阀一般采用自泄式阀座。近年来,双活塞效应阀座也越来越多地应用于管线阀门中。
自泄式阀座( 图1 ) 又称为上游密封自动泄压式阀座。上游密封是指间门使用时靠上游阀座起密封作用,当管道内为低压力或无压力时, 通过阀座背面设置的弹簧提供初始密封预紧力从而保证在此状态下的密封性能。当管道内为正常压力时,通过介质压力将上游阀座推向球面而形成密封。自动泄压是指阀门中腔压力升高(按API6D规定,通常为高于公称压力的1.33倍)时,中腔压力反推阀座, 压缩预紧弹簧,使阀座脱离球面形成泄放通道,从而保证中腔压力顺利泄放至管道内,避免了中腔异常升压带来的安全隐患。自泄式阀座可用于任何状态的介质,不会出现不稳定介质在阀腔内发生化学变化或相态变化而引起的异常升压。因为正常工作时只有一侧阀座起密封作用, 故阀门的操作力矩相对较低。此结构技术成熟,制造简单。由于自泄式阀座只有上游阀座起密封作用,因此当上游阀座损坏时,阀门密封性能就会受到影响,此时必须将阀门安装方向调转180度才能继续使用。

双活塞效应阀座(图3)又称为双密封阀座,通常用于天然气和城市燃气等领域, 其特点在于无论固定球阀前后的压差大小,阀门每一端或者阀门中腔都能独立承担全压差密封,而且能保证上下游同时密封,确保连续无泄漏。阀座在工作时上下游阀座同时起密封作用,可以保证在任何一端阀座损坏时,另一侧阀座同样能单独起到密封作用。所以,若采用双密封阀座, 可大大延长阀门的使用寿命。通常情况下,上游端阀座的损坏几率远大于下游阀座。由于双活塞效应阀座的上游阀座存在一定泄漏时,下游阀座可以将此部分泄漏的介质完全阻断, 因此,密封性能更加可靠。

固定球阀上游密封自动泄压式阀座与双密封阀座的区别双活塞效应阀座不具备自动地压功能,所以在不增加额外泄放装置时,如果中腔压力异常升高,其压力得不到泄放,对阀门的安全性会造成一定的影响。因此双活塞效应阀座通常只能使用于稳定的气态介质( 天然气、空气、氨气、惰性气体等) 中, 液态介质、冷凝介质及不稳定的气态介质输送时, 必须在阀腔上设置压力地放装置。由于双活塞效应阀座在工作时是两侧阀座同时压紧球体, 因此操作力失巨大于采用自泄式阀座的球阀。
自泄式阀座与阀座通过合理设计都能保证其密封性,且每一侧均承受管道全压差。由于两种阀座的工作原理及受力状态不同,可以根据不同的需要选择。对于输送油品的管线,建议采用自泄式阀座结构。








