- 装拆阀门时如何区分左旋螺纹和右旋螺纹呢
- 全球最大球阀生产基地本月将落户成都
- 最常用的氧气减压阀,氧气减压阀用途
- 自力式温控阀结构原理
- 自力式温度调节阀应用范围和特点
- 自力式调节阀作用、优点及分类
推荐阅览
公司电话:021-57522756移动热线:13671530603
传真号码:021-33275154
邮 箱:lqgyyz@163.com
地 址:上海市川南奉公路9860号
美标截止阀使用说明
美标截止阀介绍
感谢您选用了上海沃托阀门有限公司的美标截止阀。阀门作为承压设备的一类,具有潜在的压力危害和因发生介质泄漏而产生爆炸性气体。从安全的角度出发,用户使用前应阅读本说明书,
美标截止阀安全要求和解决方案
美标截止阀设计思路:
——美标截止阀作为一种常规阀门,因其用途广泛,没有考虑每种特定工况;
——此类美标截止阀是作为标准产品按BS1873、API602设计,并按ASME B16.34的温压等级规定具有足够的强度。
——根据不同种类介质的腐蚀和磨损,按API600规定美标截止阀有着不同的密封面材质;
——本美标截止阀不含有轻金属(例如镁),所有零件均有导电性并连接在一起阻止燃烧源。
——根据美标截止阀的尺寸、扭矩和操作要求,有手轮驱动、齿轮驱动或电动驱动等。
美标截止阀注意事项
总则
在任何情况下,首先保障人员的安全;
应根据ASME B16.34的温压等级使用美标截止阀;
应保证所选材质能抵抗介质的腐蚀和磨损;
当介质为易燃易爆时,应限制工作温度;
在维修/保养过程中,应保证美标截止阀总处在卸压、放空和排干状态;
对于动力驱动阀门,在任何操作前应保证动力系统(电、气、液)断开;
在维修/保养过程中,应采用适当防护,如防护服、氧气罩、手套等;
在维修/保养过程中,在现场,不能吸烟,不经正确的工作许可不能使用明火;
美标截止阀必须定期检查;
——螺栓/螺母连接是否紧固(体/盖、压板、法兰连接);
——腐蚀/磨损危害(撞击、点蚀、厚度的减小);
——弄清阀门是处于全开/全关位置。
美标截止阀细节
|
危害 |
防范措施 |
|
意外的与危险的介质接触 原因:垫片或填料失效 |
在失效后立即更换垫片或填料(须用正确/合适的材料) |
|
在拆卸/保养时意外地与危险介质接触 |
在从管线上拆下后,打开或关闭美标截止阀,以保证腔体的卸压;排出残留流体或在拆卸前采用适当的装置. |
|
因与危险介质或爆炸和火源接触而造成阀体的结构屈服 |
采用防范以避免额外的力作用于美标截止阀; 必要时安装防范装置以绝对避免水击现象发生(例如:闸、缓冲装置); 避免将过大的振动传到美标截止阀; 避免温度和/或压力的突变 |
|
意外的与高温或低温零件接 |
预先在美标截止阀上安装适当的绝缘体; |
|
触 |
在可能发生灼伤的危险处装上警示牌; 对于高/低温装置,只装配具有高温或低温加长的美标截止阀; |
|
易燃介质的燃烧和爆炸 |
在使用区域里只安装防爆电装置; 在使用区域里维修保养时应切断所有电源; |
|
氧气介质的爆炸 |
在使用区域里只安装防爆电装置; 只采用完全脱油脱脂的美标截止阀; 只采用适合于氧气介质的材质(见EN1797-1) |
*危险介质包括:有毒的、腐蚀的、易燃的、高温或低温介质等
美标截止阀用途和技术性能
美标截止阀用途
波纹管密封美标截止阀是当今世界新兴的一项全新技术.它的问世,扩大了阀门的使用范围,特别适用于易燃、易爆和有毒等危险介质管系以及对环境保护更为严格的场合;美标截止阀主要用于石油、化工、电站等行业中,切断或接通管路,从而使系统正常运行;随着核工业的发展,在放射性原料的处理中波纹管密封美标截止阀都是首选佳品,具有深远的社会效益。
美标截止阀技术性能
|
设计标准: BS1873,ASME B16.34 |
|
法兰尺寸: ASME B16.5 |
|
结构长度: ASME B16.10 |
|
公称通径: 20~200 mm(3/4“~8”) |
|
公称压力: 20~50 bars (150~300LB) |
|
适用温度: 见表4 |
|
适用介质: 见表4 |
|
主体材料: ASTM 材料,见表2 |
|
内件材料: API600内件材料,见表3 |
|
阀门试验: API598 |
|
波纹管试验: MSS SP-117 |
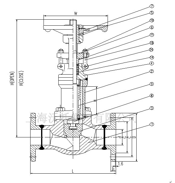
美标截止阀结构见图一、二, 连接尺寸和主要外形尺寸见表1。
图一、50mm(2”),50bars(300LB)及以上口径波纹管铸钢美标截止阀结构

图二、50mm(2”),52bars(300LB)以下口径波纹管锻钢美标截止阀结构

表1 DN20~200(3/4~8”)50bars(300LB) 美标截止阀连接尺寸及外形尺寸
|
DN |
L |
d |
G |
C |
D |
b |
n-d1 |
W |
H开 |
H关 |
L1 |
|
20(3/4”) |
178 |
20 |
43 |
82.5 |
120 |
16 |
4-18 |
110 |
286 |
274.7 |
38 |
|
25(1”) |
203 |
25 |
51 |
89 |
125 |
17.5 |
4-18 |
100 |
307 |
395 |
42 |
|
40(1-1/2”) |
229 |
40 |
73 |
145.5 |
155 |
21 |
4-22 |
150 |
382.5 |
365.5 |
59 |
|
50(2”) |
267 |
51 |
92 |
127 |
165 |
22.4 |
8-19 |
180 |
415.5 |
393.5 |
78 |
|
80(3”) |
318 |
76 |
127 |
168 |
210 |
28.5 |
8-22 |
180 |
499.5 |
470.5 |
111 |
|
100(4”) |
356 |
102 |
157 |
200 |
254 |
31.8 |
8-22 |
350 |
580 |
544 |
123 |
|
150(6”) |
444 |
152 |
216 |
270 |
318 |
36.6 |
12-22 |
550 |
865 |
813 |
170 |
|
200(8”) |
559 |
203 |
270 |
330 |
381 |
41.2 |
12-25 |
680 |
1044 |
985 |
215 |
美标截止阀主要零件材料
用户应根据工作温度、工作压力、介质种类按ASME B16.34压等级表规定选用材料、美标截止阀压力等级。只对定单上指明的材料、阀门压力等级负责。对由于用户选用的材料、阀门的压力级与使用条件的不一致性不负责任。
表2美标截止阀主要零件材料表
|
No PartsName |
Materials |
|||||||||
|
1 阀体 |
ASTM A216-WCB A105 |
ASTM A352-LCB A350-LF2 |
ASTM A352-LCC A350-LF2 |
ASTM A217-WC6 A182-F11 |
ASTM A217-WC9 A182-F22 |
ASTM A351 CF8 A182-F304 |
ASTM A351CF8M A182-F316 |
ASTM A351 CF3 A182-F304L |
ASTM A351 CF3M A182-F316L |
|
|
2 阀盖 |
ASTM A216-WCB A105 |
ASTM A352-LCB A350-LF2 |
ASTM A352-LCC A350-LF2 |
ASTM A217-WC6 A182-F11 |
ASTM A217-WC9 A182-F22 |
ASTM A351 CF8 A182-F304 |
ASTM A351 CF8M A182-F316 |
ASTM A351 CF3 A182-F304L |
ASTM A351 CF3M A182-F316L |
|
|
3 阀瓣 |
ASTM A105 |
ASTM A350-LF2 |
ASTM A350-LF2 |
ASTM A182-F11 |
ASTM A182-F22 |
ASTM A182-F304 |
ASTM A182-F316 |
ASTM A182-F304L |
ASTM A182-F316L |
|
|
4 支架 |
ASTM A216-WCB A105 |
ASTM A352-LCB A350-LF2 |
ASTM A352-LCC A350-LF2 |
ASTM A217-WC6 A182-F11 |
ASTM A217-WC9 A182-F22 |
ASTM A351 CF8 A182-F304 |
||||
|
5 阀杆螺母 |
ASTM A439-D2 |
|||||||||
|
6 压板 |
ASTM A216-WCB A105 |
ASTM A352-LCB A350-LF2 |
ASTM A352-LCC A350-LF2 |
ASTM A217-WC6 A182-F11 |
ASTM A217-WC9 A182-F22 |
ASTM A351 CF8 A182-F304 |
||||
|
7 手轮 |
DUCTILEIRON |
|||||||||
|
11 压套 |
ASTM A276 420 |
|||||||||
|
13 垫片 |
150~600LB,不锈钢缠绕垫 900~1500LB,金属垫 |
|||||||||
|
14 填料 |
GRAPHITE |
|||||||||
|
15 压盖 |
CARBON STEEL |
ASTM A276 304 |
||||||||
|
16 螺柱 |
ASTM A193 B7 |
ASTM A320 L7M |
ASTM A320 L7M |
ASTM A193 B16 |
ASTM A193 B16 |
ASTM A193 B8 |
||||
|
17 螺母 |
ASTM A194 2H |
ASTM A194 7M |
ASTM A194 7M |
ASTM A194 4 |
ASTM A194 4 |
ASTM A194 8 |
||||
|
18 活节螺栓 |
ASTM A193 B7 |
ASTM A320 L7M |
ASTM A320 L7M |
ASTM A193 B16 |
ASTM A193 B16 |
ASTM A193 B8 |
||||
|
19 螺母 |
ASTM A194 2H |
ASTM A194 7M |
ASTM A194 7M |
ASTM A194 4 |
ASTM A194 4 |
ASTM A194 8 |
||||
|
20 销 |
CARBON STEEL |
STAINLESS STEEL |
STAINLESS STEEL |
STAINLESS STEEL |
STAINLESS STEEL |
STAINLESS STEEL |
||||
|
24 销 |
CARBON STEEL |
STAINLESS STEEL |
STAINLESS STEEL |
STAINLESS STEEL |
STAINLESS STEEL |
STAINLESS STEEL |
||||
|
|
|
|
|
|
|
|
|
|
|
|
表3常用内件配对材料表
|
API 600内件号 |
座圈密封面 |
阀瓣密封面 |
阀杆 |
上密封座 |
隔环 |
|
1 |
ER410 |
ER410 |
ASTM A182 F6a |
ASTM A182 F6a |
ASTM A182 F6a |
|
2 |
304 |
304 |
ASTM A182 F304 |
ASTM A182 F304 |
ASTM A182 F304 |
|
5 |
STL |
STL |
ASTM A182 F6a |
ASTM A182 F6a |
ASTM A182 F6a |
|
8 |
STL |
ER410 |
ASTM A182 F6a |
ASTM A182 F6a |
ASTM A182 F6a |
|
9 |
Monel |
Monel |
Monel |
Monel |
Monel |
|
10 |
316 |
316 |
ASTM A182 F316 |
ASTM A182 F316 |
ASTM A182 F316 |
|
12 |
STL |
316 |
ASTM A182 F316 |
ASTM A182 F316 |
ASTM A182 F316 |
表4美标截止阀壳体材料的适用介质和温度范围
|
|
ASTM A216- WCB |
ASTM A352- LCB |
ASTM A352-LCC |
ASTM A217-WC6 |
ASTM A217-WC9 |
ASTM A351- CF8 |
ASTM A351- CF8M |
ASTM A351- CF3 |
ASTM A351 -CF3M |
|
RECOMMEND TEMPERATURE LIMITS |
-29~427 |
-46~343 |
-46~343 |
-29~593 |
-29~593 |
-29~537 |
-29~537 |
-29~427 |
-29~454 |
|
APPLICATION |
STEAM,WATER,OIL VAPOUR,GAS and GENERAL SERVICE |
LOW TEMPERATURE SERVICE STEAM,WATER,OIL VAPOUR,GAS |
HIGH TEMPERATURE SERVICE STEAM,WATER,OIL VAPOUR,GAS |
HIGH and LOW TEMPERATURE SERVICE CORROSION RESISTANCE |
|||||
注:当介质为易燃易爆时,必须限制管线系统的工作温度
美标截止阀工作原理和结构说明
美标截止阀工作原理
本系列阀门为美标截止阀,当顺时针方向旋转手轮,阀瓣降将通道切断,即为关闭时针方向旋转手轮,阀瓣上升,即为开启。
美标截止阀结构说明
美标截止阀两端连接采用法兰端结构或对焊端结构,由用户在订单中指明。
本系列阀门采用填料密封结构。填料选用国际上用的柔性石墨组合填料;
美标截止阀中腔密封采用不锈钢石墨缠绕垫。
美标截止阀采用锥面密封形式,阀门密封面按API600规定材料制作或根据用户要求。
本系列美标截止阀常规操作方式为手轮,此外根据客户要求部分采用了链轮操作方式








